Постановление Кабинета Министров Республики Татарстан от 01.12.2025 N 1019 "Об утверждении границ зон охраны объектов культурного наследия Арского муниципального района Республики Татарстан, особых режимов использования земель и требований к градостроительным регламентам в границах данных зон"
Постановление
Кабинета Министров
Республики Татарстан
от 1 декабря 2025 г. N 1019
"Об утверждении границ зон охраны объектов культурного наследия Арского
муниципального района Республики Татарстан, особых режимов использования земель
и требований к градостроительным регламентам в границах данных зон"
В соответствии с Федеральным законом от 25 июня 2002 года N 73-ФЗ "Об объектах культурного наследия (памятниках истории и культуры) Российской Федерации", Положением о зонах охраны объектов культурного наследия (памятников истории и культуры) народов Российской Федерации, утвержденным постановлением Правительства Российской Федерации от 12 сентября 2015 г. N 972 "Об утверждении Положения о зонах охраны объектов культурного наследия (памятников истории и культуры) народов Российской Федерации и о признании утратившими силу отдельных положений нормативных правовых актов Правительства Российской Федерации", Законом Республики Татарстан от 1 апреля 2005 года N 60-ЗРТ "Об объектах культурного наследия в Республике Татарстан" Кабинет Министров Республики Татарстан постановляет:
1. Утвердить прилагаемые:
границы зон охраны объекта культурного наследия регионального значения "Дом жилой", конец XIX в., расположенного по адресу: Республика Татарстан, Арский муниципальный район, г. Арск, ул. Первомайская, д. 12, особый режим использования земель и требования к градостроительным регламентам в границах данных зон;
границы зон охраны объекта культурного наследия регионального значения "Дом Капраловой", XX век, расположенного по адресу: Республика Татарстан, Арский муниципальный район, г. Арск, Советская площадь, д. 10, особый режим использования земель и требования к градостроительным регламентам в границах данных зон;
границы зон охраны объекта культурного наследия регионального значения "Здание мечети", конец XIX в., расположенного по адресу: Республика Татарстан, Арский муниципальный район, с. Чиканас, ул. Советская, д. 36, особый режим использования земель и требования к градостроительным регламентам в границах данных зон;
границы зон охраны объекта культурного наследия регионального значения "Мечеть", 1911 г., расположенного по адресу: Республика Татарстан, Арский муниципальный район, с. Новый Кырлай, ул. Татарстана, д. 20а, особый режим использования земель и требования к градостроительным регламентам в границах данных зон;
границы зон охраны объекта культурного наследия регионального значения "Усадьба крестьянина Сагди, в которой в 1892-1895 гг. жил поэт Габдулла Тукай (1886-1913)", 1892-1895 гг., расположенного по адресу: Республика Татарстан, Арский муниципальный район, с. Новый Кырлай, ул. Тукая, д. 30, особый режим использования земель и требования к градостроительным регламентам в границах данных зон.
2. Комитету Республики Татарстан по охране объектов культурного наследия обеспечить внесение в Единый государственный реестр недвижимости сведений о границах зон охраны объектов культурного наследия Арского муниципального района, об ограничениях использования объектов недвижимого имущества, находящихся в указанных границах, а также размещение в федеральной государственной информационной системе территориального планирования информации об установленных зонах охраны и утвержденных требованиях к градостроительным регламентам в границах зон охраны.
3. Контроль за исполнением настоящего постановления возложить на Комитет Республики Татарстан по охране объектов культурного наследия.
4. Установить, что настоящее постановление вступает в силу с 1 марта 2026 года.
Премьер-министр | А.В. Песошин |
Границы зон
охраны объекта культурного наследия регионального значения "Дом
жилой", конец XIX в., расположенного по адресу: Республика Татарстан,
Арский муниципальный район, г. Арск, ул. Первомайская, д. 12,
особый режим использования земель и требования к градостроительным регламентам в
границах данных зон
(утв. постановлением
КМ РТ от 1 декабря 2025 г. N 1019)
Карта (схема) границ зон охраны объекта культурного наследия регионального значения "Дом жилой", конец XIX в.

Охранная зона объекта культурного наследия регионального значения "Дом жилой", конец XIX в., расположенного по адресу: Республика Татарстан, Арский муниципальный район, г. Арск, ул. Первомайская, д. 12
Раздел 1
Сведения об объекте | ||
N п/п | Характеристики объекта | Описание характеристик |
1 | Местоположение объекта | Республика Татарстан, Арский муниципальный район, г. Арск |
2 | Площадь объекта +/- величина погрешности определения площади (Р +/- Дельта Р) | 296,0 кв. метра +/- 6,0 кв. метра |
3 | Иные характеристики объекта | - |
Раздел 2
Сведения о местоположении границ объекта | |||||
1. Система координат: МСК-16 | |||||
2. Сведения о характерных точках границ объекта | |||||
Обозначение характерных точек границ | Координаты, метров | Метод определения координат характерной точки | Средняя квадратическая погрешность положения характерной точки (Mt), метров | Описание обозначения точки на местности (при наличии) | |
X | Y | ||||
1 | 2 | 3 | 4 | 5 | 6 |
- | - | - | - | - | - |
3. Сведения о характерных точках части (частей) границы объекта | |||||
Обозначение характерных точек части границы | Координаты, метров | Метод определения координат характерной точки | Средняя квадратическая погрешность положения характерной точки (Mt), метров | Описание обозначения точки на местности (при наличии) | |
X | Y | ||||
1 | 509441,57 | 1352526,78 | Аналитический | 0,1 | - |
2 | 509442,75 | 1352528,89 | Аналитический | 0,1 | - |
3 | 509457,03 | 1352554,74 | Аналитический | 0,1 | - |
4 | 509456,13 | 1352560,15 | Аналитический | 0,1 | - |
5 | 509443,42 | 1352567,50 | Аналитический | 0,1 | - |
6 | 509426,46 | 1352575,97 | Аналитический | 0,1 | - |
7 | 509425,29 | 1352572,84 | Аналитический | 0,1 | - |
8 | 509441,27 | 1352563,72 | Аналитический | 0,1 | - |
9 | 509455,07 | 1352555,85 | Аналитический | 0,1 | - |
10 | 509449,53 | 1352545,94 | Аналитический | 0,1 | - |
11 | 509441,12 | 1352530,91 | Аналитический | 0,1 | - |
12 | 509440,66 | 1352530,09 | Аналитический | 0,1 | - |
13 | 509412,29 | 1352546,43 | Аналитический | 0,1 | - |
14 | 509411,22 | 1352544,26 | Аналитический | 0,1 | - |
1 | 509441,57 | 1352526,78 | Аналитический | 0,1 | - |
Раздел 3
Сведения о местоположении измененных (уточненных) границ объекта | |||||||
1. Система координат: МСК-16 | |||||||
2. Сведения о характерных точках границ объекта | |||||||
Обозначение характерных точек границ | Существующие координаты, метров | Измененные (уточненные) координаты, метров | Метод определения координат характерной точки | Средняя квадратическая погрешность положения характерной точки (Mt), метров | Описание обозначения точки на местности (при наличии) | ||
X | Y | X | Y | ||||
1 | 2 | 3 | 4 | 5 | 6 | 7 | 8 |
- | - | - | - | - | - | - | - |
3. Сведения о характерных точках части (частей) границы объекта | |||||||
1 | 2 | 3 | 4 | 5 | 6 | 7 | 8 |
- | - | - | - | - | - | - | - |
Раздел 4
План границ охранной зоны объекта культурного наследия регионального значения
"Дом жилой", конец XIX в., адрес (местоположение): Республика
Татарстан, Арский муниципальный район, г. Арск, ул. Первомайская,
д. 12

Особый режим использования земель и требования к градостроительным регламентам в границах охранной зоны объекта культурного наследия регионального значения "Дом жилой", конец XIX в., адрес (местоположение): Республика Татарстан, Арский муниципальный район, г. Арск, ул. Первомайская, д. 12
Запрещается:
1. Строительство, за исключением применения специальных мер, направленных на сохранение и (или) восстановление (регенерацию) историко-градостроительной и (или) природной среды объекта культурного наследия (восстановление, воссоздание, восполнение частично или полностью утраченных элементов и (или) характеристик историко-градостроительной и (или) природной среды).
2. Использование строительных технологий, оказывающих негативное воздействие на объекты культурного наследия и историческую застройку.
3. Размещение взрыво- и пожароопасных объектов, угрожающих сохранности объектов культурного наследия.
4. Строительство инженерных сетей наземным и надземным способами.
Исключение составляют случаи, когда такое строительство направлено на минимизацию негативного воздействия на объект культурного наследия и его историко-градостроительную и (или) природную среду.
5. Размещение рекламы, вывесок, некапитальных строений, сооружений и объектов, а именно:
мемориальных досок, памятных знаков, информационных табличек площадью информационного поля более 0,6 кв. метра;
указателей расположения туристских ресурсов и социальных объектов с параметрами более 1,8 метра по высоте и 1,2 метра по ширине.
Исключение составляют случаи, если такое размещение необходимо для обеспечения современного использования объекта культурного наследия, в том числе на время проведения работ по сохранению объектов культурного наследия.
6. Размещение базовых станций сотовой связи, башенных и антенно-мачтовых конструкций, включая телевизионные и радиоантенны.
Этот запрет не применяется к базовым станциям сотовой связи, башенным и антенно-мачтовым конструкциям, включая телевизионные и радиоантенны, которые размещены до 1 марта 2025 г., и не ограничивает проведение работ по их ремонту и модернизации.
7. Проведение работ в области благоустройства, предусматривающих:
применение нетрадиционных материалов в покрытии проездов, проходов, кроме асфальтобетона, натуральных материалов (камень, гранит, гравийная смесь) или имитирующих их (тротуарная плитка) с организацией водоотведения;
установку малых архитектурных форм, произведений монументально-декоративного искусства, мемориальных знаков, отдельно стоящего оборудования освещения, не соответствующих характеру историко-градостроительной среды;
посадку деревьев и кустарников, препятствующих визуальному восприятию объекта культурного наследия;
установку ограждений, кроме прозрачных, формирующих территории общего пользования, с применением материалов, соответствующих характеру историко-градостроительной среды (допускается применение строительных ограждений на время производства земляных, хозяйственных, ремонтных и иных работ).
Исключение составляют случаи, когда работы не оказывают негативного воздействия на объект культурного наследия, или не нарушают характеристики его историко-градостроительной среды, или необходимы для обеспечения его функционирования или обеспечения жизнедеятельности населения.
8. Размещение отходов производства и потребления, устройство складов и захоронений ядохимикатов.
Зона регулирования застройки и хозяйственной деятельности объекта культурного наследия регионального значения "Дом жилой", конец XIX в., адрес (местоположение): Республика Татарстан, Арский муниципальный район, г. Арск, ул. Первомайская, д. 12
Раздел 1
Сведения об объекте | ||
N п/п | Характеристики объекта | Описание характеристик |
1 | Местоположение объекта | Республика Татарстан, Арский муниципальный район, г. Арск |
2 | Площадь объекта +/- величина погрешности определения площади (Р +/- Дельта Р) | 757,0 кв. метра +/- 10,0 кв. метра |
3 | Иные характеристики объекта | - |
Раздел 2
Сведения о местоположении границ объекта | |||||
1. Система координат: МСК-16 | |||||
2. Сведения о характерных точках границ объекта | |||||
Обозначение характерных точек границ | Координаты, метров | Метод определения координат характерной точки | Средняя квадратическая погрешность положения характерной точки (Mt), метров | Описание обозначения точки на местности (при наличии) | |
X | Y | ||||
1 | 2 | 3 | 4 | 5 | 6 |
- | - | - | - | - | - |
3. Сведения о характерных точках части (частей) границы объекта | |||||
Обозначение характерных точек части границы | Координаты, метров | Метод определения координат характерной точки | Средняя квадратическая погрешность положения характерной точки (Mt), метров | Описание обозначения точки на местности (при наличии) | |
X | Y | ||||
1 | 509411,22 | 1352544,26 | Аналитический | 0,1 | - |
2 | 509412,29 | 1352546,43 | Аналитический | 0,1 | - |
3 | 509413,24 | 1352548,36 | Аналитический | 0,1 | - |
4 | 509425,29 | 1352572,84 | Аналитический | 0,1 | - |
5 | 509426,46 | 1352575,97 | Аналитический | 0,1 | - |
6 | 509410,16 | 1352585,91 | Аналитический | 0,1 | - |
7 | 509405,80 | 1352580,01 | Аналитический | 0,1 | - |
8 | 509393,43 | 1352559,15 | Аналитический | 0,1 | - |
9 | 509391,45 | 1352555,65 | Аналитический | 0,1 | - |
1 | 509411,22 | 1352544,26 | Аналитический | 0,1 | - |
Раздел 3
Сведения о местоположении измененных (уточненных) границ объекта | |||||||
1. Система координат: МСК-16 | |||||||
2. Сведения о характерных точках границ объекта | |||||||
Обозначение характерных точек границ | Существующие координаты, метров | Измененные (уточненные) координаты, метров | Метод определения координат характерной точки | Средняя квадратическая погрешность положения характерной точки (Mt), метров | Описание обозначения точки на местности (при наличии) | ||
X | Y | X | Y | ||||
1 | 2 | 3 | 4 | 5 | 6 | 7 | 8 |
- | - | - | - | - | - | - | - |
3. Сведения о характерных точках части (частей) границы объекта | |||||||
1 | 2 | 3 | 4 | 5 | 6 | 7 | 8 |
- | - | - | - | - | - | - | - |
Раздел 4
План границ зоны регулирования застройки и хозяйственной деятельности объекта
культурного наследия регионального значения "Дом жилой", конец
XIX в., адрес (местоположение): Республика Татарстан, Арский муниципальный
район, г. Арск, ул. Первомайская, д. 12

Режим использования земель и требования к градостроительным регламентам в границах зоны регулирования застройки и хозяйственной деятельности объекта культурного наследия регионального значения "Дом жилой", конец XIX в., адрес (местоположение): Республика Татарстан, Арский муниципальный район, г. Арск, ул. Первомайская, д. 12
Запрещается:
1. Использование строительных технологий, оказывающих негативное воздействие на объекты культурного наследия и историческую застройку.
2. Размещение взрыво- и пожароопасных объектов, угрожающих сохранности объектов культурного наследия.
3. Строительство, реконструкция объектов капитального строительства, предусматривающие:
высоту более 8 метров до карниза и более 10 метров до конька скатной кровли, парапета или верха выступающих строительных конструкций (за уровень земли принимается средняя отметка, которая высчитывается путем сравнения всех угловых отметок здания);
применение для наружной отделки фасадов сайдинга, металлических или пластиковых панелей, профилированного металлического листа, асбестоцементных листов, а также фрагментарной отделки.
4. Строительство инженерных сетей наземным и надземным способами, кроме временных сетей на период строительных и ремонтных работ.
Исключение составляют случаи, если такое строительство направлено на минимизацию негативного воздействия на объект культурного наследия и его историко-градостроительную и (или) природную среду или необходимо для обеспечения его функционирования или обеспечения жизнедеятельности населения.
5. Размещение рекламы, вывесок, некапитальных строений, сооружений, а именно:
рекламных конструкций с одной стороной информационного поля более 1,5 кв. метра и высотой более 2,0 метра;
информационных табличек площадью информационного поля более 0,6 кв. метра;
памятных знаков, указателей расположения туристских ресурсов и социальных объектов с параметрами более 1,8 метра по высоте и 1,2 метра по ширине;
некапитальных строений высотой более 4 метров, за исключением их размещения в виде отдельно стоящих объектов инженерной инфраструктуры, необходимых для функционирования объектов культурного наследия (трансформаторные подстанции);
установка глухих (непросматриваемых) ограждений по границам участков, за исключением временных ограждений для производства земляных, хозяйственных, ремонтных и иных работ.
6. Размещение базовых станций сотовой связи, башенных и антенно-мачтовых конструкций, включая телевизионные и радиоантенны.
Этот запрет не применяется к базовым станциям сотовой связи, башенным и антенно-мачтовым конструкциям, включая телевизионные и радиоантенны, которые размещены до 1 марта 2025 г., и не ограничивает проведение работ по их ремонту и модернизации в пределах их объемно-пространственных параметров.
Границы зон
охраны объекта культурного наследия регионального значения "Дом
Капраловой", XX век, расположенного по адресу: Республика Татарстан,
Арский муниципальный район, г. Арск, Советская площадь, д. 10, особый
режим использования земель и требования к градостроительным регламентам в границах
данных зон
(утв. постановлением
КМ РТ от 1 декабря 2025 г. N 1019)
Карта (схема) границ зон охраны объекта культурного наследия регионального значения "Дом Капраловой", XX век

Охранная зона объекта культурного наследия регионального значения "Дом Капраловой", XX век, адрес (местоположение): Республика Татарстан, Арский муниципальный район, г. Арск, Советская площадь, д. 10
Раздел 1
Сведения об объекте | ||
N п/п | Характеристики объекта | Описание характеристик |
1 | Местоположение объекта | Республика Татарстан, Арский муниципальный район, г. Арск |
2 | Площадь объекта +/- величина погрешности определения площади (Р +/- Дельта Р) | 352,0 кв. метра +/- 7,0 кв. метра |
3 | Иные характеристики объекта | - |
Раздел 2
Сведения о местоположении границ объекта |
| ||||||||||
1. Система координат: МСК-16 |
| ||||||||||
2. Сведения о характерных точках границ объекта |
| ||||||||||
Обозначение характерных точек границ | Координаты, метров | Метод определения координат характерной точки | Средняя квадратическая погрешность положения характерной точки (Mt), метров | Описание обозначения точки на местности (при наличии) |
| ||||||
X | Y |
|
|||||||||
1 | 2 | 3 | 4 | 5 | 6 |
| |||||
- | - | - | - | - | - |
| |||||
3. Сведения о характерных точках части (частей) границы объекта | |||||||||||
Обозначение характерных точек части границы | Координаты, метров | Метод определения координат характерной точки | Средняя квадратическая погрешность положения характерной точки (Mt), метров | Описание обозначения точки на местности (при наличии) | |||||||
X | Y | ||||||||||
1 | 2 | 3 | 4 | 5 | 6 | ||||||
1 | 509815,50 | 1352721,27 | Аналитический | 0,1 | - | ||||||
2 | 509818,19 | 1352725,90 | Аналитический | 0,1 | - | ||||||
3 | 509819,85 | 1352728,76 | Аналитический | 0,1 | - | ||||||
4 | 509820,18 | 1352728,61 | Аналитический | 0,1 | - | ||||||
5 | 509823,54 | 1352735,11 | Аналитический | 0,1 | - | ||||||
6 | 509822,91 | 1352735,46 | Аналитический | 0,1 | - | ||||||
7 | 509826,87 | 1352742,40 | Аналитический | 0,1 | - | ||||||
8 | 509825,56 | 1352743,19 | Аналитический | 0,1 | - | ||||||
9 | 509825,86 | 1352743,77 | Аналитический | 0,1 | - | ||||||
10 | 509825,97 | 1352743,99 | Аналитический | 0,1 | - | ||||||
11 | 509825,95 | 1352744,00 | Аналитический | 0,1 | - | ||||||
12 | 509826,24 | 1352744,75 | Аналитический | 0,1 | - | ||||||
13 | 509804,41 | 1352758,10 | Аналитический | 0,1 | - | ||||||
14 | 509802,46 | 1352759,29 | Аналитический | 0,1 | - | ||||||
15 | 509789,69 | 1352736,66 | Аналитический | 0,1 | - | ||||||
1 | 509815,50 | 1352721,27 | Аналитический | 0,1 | - | ||||||
| |||||||||||
16 | 509814,15 | 1352726,44 | Аналитический | 0,1 | - | ||||||
17 | 509812,22 | 1352726,63 | Аналитический | 0,1 | - | ||||||
18 | 509803,40 | 1352731,56 | Аналитический | 0,1 | - | ||||||
19 | 509803,07 | 1352731,01 | Аналитический | 0,1 | - | ||||||
20 | 509794,80 | 1352735,94 | Аналитический | 0,1 | - | ||||||
21 | 509793,74 | 1352739,77 | Аналитический | 0,1 | - | ||||||
22 | 509803,34 | 1352756,78 | Аналитический | 0,1 | - | ||||||
23 | 509803,94 | 1352756,40 | Аналитический | 0,1 | - | ||||||
24 | 509813,09 | 1352750,80 | Аналитический | 0,1 | - | ||||||
25 | 509808,96 | 1352743,47 | Аналитический | 0,1 | - | ||||||
26 | 509811,61 | 1352741,98 | Аналитический | 0,1 | - | ||||||
27 | 509812,49 | 1352741,49 | Аналитический | 0,1 | - | ||||||
28 | 509816,78 | 1352739,08 | Аналитический | 0,1 | - | ||||||
29 | 509820,25 | 1352737,08 | Аналитический | 0,1 | - | ||||||
30 | 509816,35 | 1352730,30 | Аналитический | 0,1 | - | ||||||
31 | 509815,01 | 1352727,96 | Аналитический | 0,1 | - | ||||||
16 | 509814,15 | 1352726,44 | Аналитический | 0,1 | - | ||||||
Раздел 3
Сведения о местоположении измененных (уточненных) границ объекта | |||||||
1. Система координат: МСК-16 | |||||||
2. Сведения о характерных точках границ объекта | |||||||
Обозначение характерных точек границ | Существующие координаты, метров | Измененные (уточненные) координаты, метров | Метод определения координат характерной точки | Средняя квадратическая погрешность положения характерной точки (Mt), метров | Описание обозначения точки на местности (при наличии) | ||
X | Y | X | Y | ||||
1 | 2 | 3 | 4 | 5 | 6 | 7 | 8 |
- | - | - | - | - | - | - | - |
3. Сведения о характерных точках части (частей) границы объекта | |||||||
1 | 2 | 3 | 4 | 5 | 6 | 7 | 8 |
- | - | - | - | - | - | - | - |
Раздел 4
План границ охранной зоны объекта культурного наследия регионального значения
"Дом Капраловой", XX век, адрес (местоположение): Республика
Татарстан, Арский муниципальный район, г. Арск, Советская площадь,
д. 10

Особый режим использования земель и требования к градостроительным регламентам в границах охранной зоны объекта культурного наследия регионального значения "Дом Капраловой", XX век, расположенного по адресу: Республика Татарстан, Арский муниципальный район, г. Арск, Советская площадь, д. 10
Запрещается:
1. Строительство, за исключением применения специальных мер, направленных на сохранение и (или) восстановление (регенерацию) историко-градостроительной и (или) природной среды объекта культурного наследия (восстановление, воссоздание, восполнение частично или полностью утраченных элементов и (или) характеристик историко-градостроительной и (или) природной среды).
2. Использование строительных технологий, оказывающих негативное воздействие на объекты культурного наследия и историческую застройку.
3. Размещение взрыво- и пожароопасных объектов, угрожающих сохранности объектов культурного наследия.
4. Строительство инженерных сетей наземным и надземным способами.
Исключение составляют случаи, когда такое строительство направлено на минимизацию негативного воздействия на объект культурного наследия и его историко-градостроительную и (или) природную среду.
5. Размещение рекламы, вывесок, некапитальных строений, сооружений и объектов, а именно:
мемориальных досок, памятных знаков, информационных табличек площадью информационного поля более 0,6 кв. метра;
указателей расположения туристских ресурсов и социальных объектов с параметрами более 1,8 метра по высоте и 1,2 метра по ширине.
Исключение составляют случаи, если такое размещение необходимо для обеспечения современного использования объекта культурного наследия, в том числе на время проведения работ по сохранению объектов культурного наследия.
6. Размещение базовых станций сотовой связи, башенных и антенно-мачтовых конструкций, включая телевизионные и радиоантенны.
Этот запрет не применяется к базовым станциям сотовой связи, башенным и антенно-мачтовым конструкциям, включая телевизионные и радиоантенны, которые размещены до 1 марта 2025 г., и не ограничивает проведение работ по их ремонту и модернизации.
7. Проведение работ в области благоустройства, предусматривающих:
применение нетрадиционных материалов в покрытии проездов, проходов, кроме асфальтобетона, натуральных материалов (камень, гранит, гравийная смесь) или имитирующих их (тротуарная плитка) с организацией водоотведения;
установку малых архитектурных форм, произведений монументально-декоративного искусства, мемориальных знаков, отдельно стоящего оборудования освещения, не соответствующих характеру историко-градостроительной среды;
посадку деревьев и кустарников, препятствующих визуальному восприятию объекта культурного наследия;
установку ограждений, кроме прозрачных, формирующих территории общего пользования, с применением материалов, соответствующих характеру историко-градостроительной среды (допускается применение строительных ограждений на время производства земляных, хозяйственных, ремонтных и иных работ).
Исключение составляют случаи, когда работы не оказывают негативного воздействия на объект культурного наследия, или не нарушают характеристики его историко-градостроительной среды, или необходимы для обеспечения его функционирования или обеспечения жизнедеятельности населения.
8. Размещение отходов производства и потребления, устройство складов и захоронений ядохимикатов.
Зона регулирования застройки и хозяйственной деятельности объекта культурного наследия регионального значения "Дом Капраловой", XX век, адрес (местоположение): Республика Татарстан, Арский муниципальный район, г. Арск, Советская площадь, д. 10
Раздел 1
Сведения об объекте | ||
N п/п | Характеристики объекта | Описание характеристик |
1 | Местоположение объекта | Республика Татарстан, Арский муниципальный район, г. Арск |
2 | Площадь объекта +/- величина погрешности определения площади (Р +/- Дельта Р) | 4664,0 кв. метра +/- 24,0 кв. метра |
3 | Иные характеристики объекта | - |
Раздел 2
Сведения о местоположении границ объекта | |||||
1. Система координат: МСК-16 | |||||
2. Сведения о характерных точках границ объекта | |||||
Обозначение характерных точек границ | Координаты, метров | Метод определения координат характерной точки | Средняя квадратическая погрешность положения характерной точки (Mt), метров | Описание обозначения точки на местности (при наличии) | |
X | Y | ||||
1 | 2 | 3 | 4 | 5 | 6 |
- | - | - | - | - | - |
3. Сведения о характерных точках части (частей) границы объекта | |||||
Обозначение характерных точек части границы | Координаты, метров | Метод определения координат характерной точки | Средняя квадратическая погрешность положения характерной точки (Mt), метров | Описание обозначения точки на местности (при наличии) | |
X | Y | ||||
1 | 2 | 3 | 4 | 5 | 6 |
1 | 509851,14 | 1352705,00 | Аналитический | 0,1 | - |
2 | 509868,56 | 1352733,85 | Аналитический | 0,1 | - |
3 | 509868,21 | 1352735,38 | Аналитический | 0,1 | - |
4 | 509866,84 | 1352736,32 | Аналитический | 0,1 | - |
5 | 509866,53 | 1352735,82 | Аналитический | 0,1 | - |
6 | 509845,56 | 1352748,07 | Аналитический | 0,1 | - |
7 | 509860,70 | 1352777,02 | Аналитический | 0,1 | - |
8 | 509859,83 | 1352777,53 | Аналитический | 0,1 | - |
9 | 509858,08 | 1352778,57 | Аналитический | 0,1 | - |
10 | 509858,18 | 1352778,75 | Аналитический | 0,1 | - |
11 | 509869,40 | 1352798,59 | Аналитический | 0,1 | - |
12 | 509881,36 | 1352819,92 | Аналитический | 0,1 | - |
13 | 509856,60 | 1352834,36 | Аналитический | 0,1 | - |
14 | 509848,77 | 1352833,53 | Аналитический | 0,1 | - |
15 | 509811,40 | 1352769,99 | Аналитический | 0,1 | - |
16 | 509804,41 | 1352758,10 | Аналитический | 0,1 | - |
17 | 509825,97 | 1352744,92 | Аналитический | 0,1 | - |
18 | 509826,24 | 1352744,75 | Аналитический | 0,1 | - |
19 | 509825,95 | 1352744,00 | Аналитический | 0,1 | - |
20 | 509825,97 | 1352743,99 | Аналитический | 0,1 | - |
21 | 509825,86 | 1352743,77 | Аналитический | 0,1 | - |
22 | 509825,56 | 1352743,19 | Аналитический | 0,1 | - |
23 | 509826,87 | 1352742,40 | Аналитический | 0,1 | - |
24 | 509822,91 | 1352735,46 | Аналитический | 0,1 | - |
25 | 509823,54 | 1352735,11 | Аналитический | 0,1 | - |
26 | 509820,18 | 1352728,61 | Аналитический | 0,1 | - |
27 | 509819,85 | 1352728,76 | Аналитический | 0,1 | - |
28 | 509818,19 | 1352725,90 | Аналитический | 0,1 | - |
29 | 509818,40 | 1352724,07 | Аналитический | 0,1 | - |
30 | 509831,00 | 1352716,75 | Аналитический | 0,1 | - |
31 | 509832,71 | 1352716,95 | Аналитический | 0,1 | - |
32 | 509837,94 | 1352713,89 | Аналитический | 0,1 | - |
33 | 509838,51 | 1352712,36 | Аналитический | 0,1 | - |
1 | 509851,14 | 1352705,00 | Аналитический | 0,1 | - |
Раздел 3
Сведения о местоположении измененных (уточненных) границ объекта | |||||||
1. Система координат: МСК-16 | |||||||
2. Сведения о характерных точках границ объекта | |||||||
Обозначение характерных точек границ | Существующие координаты, метров | Измененные (уточненные) координаты, метров | Метод определения координат характерной точки | Средняя квадратическая погрешность положения характерной точки (Mt), метров | Описание обозначения точки на местности (при наличии) | ||
X | Y | X | Y | ||||
1 | 2 | 3 | 4 | 5 | 6 | 7 | 8 |
- | - | - | - | - | - | - | - |
3. Сведения о характерных точках части (частей) границы объекта | |||||||
1 | 2 | 3 | 4 | 5 | 6 | 7 | 8 |
- | - | - | - | - | - | - | - |
Раздел 4
План границ зоны регулирования застройки и хозяйственной деятельности объекта
культурного наследия регионального значения "Дом Капраловой", XX век,
адрес (местоположение): Республика Татарстан, Арский муниципальный район,
г. Арск, Советская площадь, д. 10

Режим использования земель и требования к градостроительным регламентам в границах зоны регулирования застройки и хозяйственной деятельности объекта культурного наследия регионального значения "Дом Капраловой", XX век, адрес (местоположение): Республика Татарстан, Арский муниципальный район, г. Арск, Советская площадь, д. 10
Запрещается:
1. Использование строительных технологий, оказывающих негативное воздействие на объекты культурного наследия и историческую застройку.
2. Размещение взрыво- и пожароопасных объектов, угрожающих сохранности объектов культурного наследия.
3. Строительство, реконструкция объектов капитального строительства, предусматривающие:
высоту более 8 метров до карниза и более 10 метров до конька скатной кровли, парапета или верха выступающих строительных конструкций (за уровень земли принимается средняя отметка, которая высчитывается путем сравнения всех угловых отметок здания);
применение для наружной отделки фасадов сайдинга, металлических или пластиковых панелей, профилированного металлического листа, асбестоцементных листов, а также фрагментарной отделки.
4. Строительство инженерных сетей наземным и надземным способами, кроме временных сетей на период строительных и ремонтных работ.
Исключение составляют случаи, если такое строительство направлено на минимизацию негативного воздействия на объект культурного наследия и его историко-градостроительную и (или) природную среду или необходимо для обеспечения его функционирования или обеспечения жизнедеятельности населения.
5. Размещение рекламы, вывесок, некапитальных строений, сооружений, а именно:
рекламных конструкций с одной стороной информационного поля более 1,5 кв. метра и высотой более 2,0 метра;
информационных табличек площадью информационного поля более 0,6 кв. метра;
памятных знаков, указателей расположения туристских ресурсов и социальных объектов с параметрами более 1,8 метра по высоте и 1,2 метра по ширине;
некапитальных строений высотой более 4 метров, за исключением их размещения в виде отдельно стоящих объектов инженерной инфраструктуры, необходимых для функционирования объектов культурного наследия (трансформаторные подстанции);
установка глухих (непросматриваемых) ограждений по границам участков, за исключением временных ограждений для производства земляных, хозяйственных, ремонтных и иных работ.
6. Размещение базовых станций сотовой связи, башенных и антенно-мачтовых конструкций, включая телевизионные и радиоантенны.
Этот запрет не применяется к базовым станциям сотовой связи, башенным и антенно-мачтовым конструкциям, включая телевизионные и радиоантенны, которые размещены до 1 марта 2025 г., и не ограничивает проведение работ по их ремонту и модернизации в пределах их объемно-пространственных параметров.
Границы зон
охраны объекта культурного наследия регионального значения "Здание
мечети", конец XIX в., расположенного по адресу: Республика
Татарстан, Арский муниципальный район, с. Чиканас, ул. Советская,
д. 36, особый режим использования земель и требования к градостроительным
регламентам в границах данных зон
(утв. постановлением
КМ РТ от 1 декабря 2025 г. N 1019)
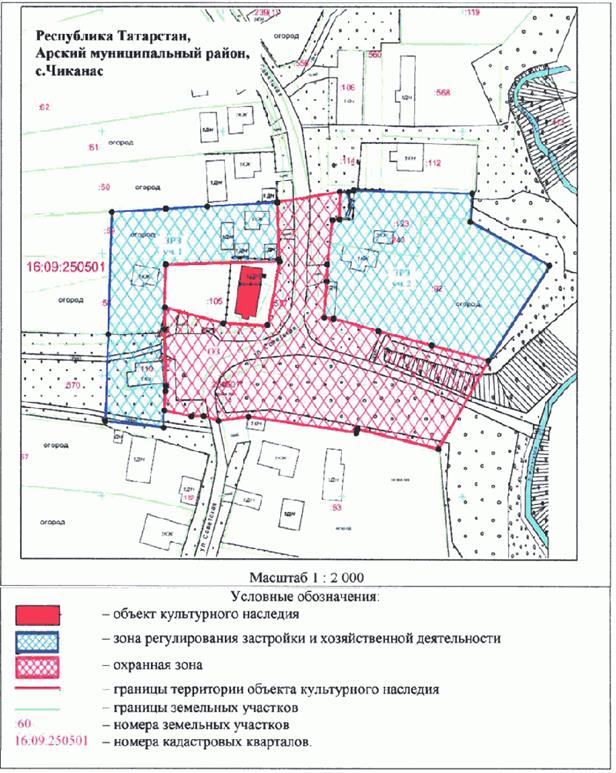
Карта (схема) границ зон охраны объекта культурного наследия регионального значения "Здание мечети", конец XIX в.

Охранная зона объекта культурного наследия регионального значения "Здание мечети", конец XIX в., адрес (местоположение): Республика Татарстан, Арский муниципальный район, с. Чиканас, ул. Советская, д. 36
Раздел 1
Сведения об объекте | ||
N п/п | Характеристики объекта | Описание характеристик |
1 | Местоположение объекта | Республика Татарстан, Арский муниципальный район, с. Чиканас |
2 | Площадь объекта +/- величина погрешности определения площади (Р +/- Дельта Р) | 6315,0 кв. метра +/- 28,0 кв. метра |
3 | Иные характеристики объекта | - |
Раздел 2
Сведения о местоположении границ объекта |
| ||||||||||
1. Система координат: МСК-16 |
| ||||||||||
2. Сведения о характерных точках границ объекта |
| ||||||||||
Обозначение характерных точек границ | Координаты, метров | Метод определения координат характерной точки | Средняя квадратическая погрешность положения характерной точки (Mt), метров | Описание обозначения точки на местности (при наличии) |
| ||||||
X | Y |
|
|||||||||
1 | 2 | 3 | 4 | 5 | 6 |
| |||||
- | - | - | - | - | - |
| |||||
3. Сведения о характерных точках части (частей) границы объекта | |||||||||||
Обозначение характерных точек части границы | Координаты, метров | Метод определения координат характерной точки | Средняя квадратическая погрешность положения характерной точки (Mt), метров | Описание обозначения точки на местности (при наличии) | |||||||
X | Y | ||||||||||
1 | 522135,51 | 1347075,94 | Аналитический | 0,1 | - | ||||||
2 | 522143,42 | 1347076,37 | Аналитический | 0,1 | - | ||||||
3 | 522145,73 | 1347076,50 | Аналитический | 0,1 | - | ||||||
4 | 522168,43 | 1347076,07 | Аналитический | 0,1 | - | ||||||
5 | 522177,68 | 1347076,14 | Аналитический | 0,1 | - | ||||||
6 | 522171,30 | 1347100,47 | Аналитический | 0,1 | - | ||||||
7 | 522170,28 | 1347118,93 | Аналитический | 0,1 | - | ||||||
8 | 522196,60 | 1347123,93 | Аналитический | 0,1 | - | ||||||
9 | 522197,47 | 1347123,58 | Аналитический | 0,1 | - | ||||||
10 | 522221,12 | 1347122,90 | Аналитический | 0,1 | - | ||||||
11 | 522225,38 | 1347148,94 | Аналитический | 0,1 | - | ||||||
12 | 522214,11 | 1347148,75 | Аналитический | 0,1 | - | ||||||
13 | 522213,87 | 1347145,84 | Аналитический | 0,1 | - | ||||||
14 | 522195,43 | 1347143,77 | Аналитический | 0,1 | - | ||||||
15 | 522188,55 | 1347143,50 | Аналитический | 0,1 | - | ||||||
16 | 522173,72 | 1347142,40 | Аналитический | 0,1 | - | ||||||
17 | 522173,26 | 1347146,40 | Аналитический | 0,1 | - | ||||||
18 | 522168,18 | 1347164,98 | Аналитический | 0,1 | - | ||||||
19 | 522162,45 | 1347187,12 | Аналитический | 0,1 | - | ||||||
20 | 522156,32 | 1347210,78 | Аналитический | 0,1 | - | ||||||
21 | 522119,78 | 1347190,13 | Аналитический | 0,1 | - | ||||||
22 | 522127,98 | 1347156,33 | Аналитический | 0,1 | - | ||||||
23 | 522126,60 | 1347155,87 | Аналитический | 0,1 | - | ||||||
24 | 522132,98 | 1347111,08 | Аналитический | 0,1 | - | ||||||
25 | 522131,29 | 1347098,54 | Аналитический | 0,1 | - | ||||||
26 | 522133,25 | 1347092,41 | Аналитический | 0,1 | - | ||||||
27 | 522133,15 | 1347087,28 | Аналитический | 0,1 | - | ||||||
1 | 522135,51 | 1347075,94 | Аналитический | 0,1 | - | ||||||
Раздел 3
Сведения о местоположении измененных (уточненных) границ объекта | |||||||
1. Система координат: МСК-16 | |||||||
2. Сведения о характерных точках границ объекта | |||||||
Обозначение характерных точек границ | Существующие координаты, метров | Измененные (уточненные) координаты, метров | Метод определения координат характерной точки | Средняя квадратическая погрешность положения характерной точки (Mt), метров | Описание обозначения точки на местности (при наличии) | ||
X | Y | X | Y | ||||
1 | 2 | 3 | 4 | 5 | 6 | 7 | 8 |
- | - | - | - | - | - | - | - |
3. Сведения о характерных точках части (частей) границы объекта | |||||||
1 | 2 | 3 | 4 | 5 | 6 | 7 | 8 |
- | - | - | - | - | - | - | - |
Раздел 4
План границ охранной зоны объекта культурного наследия регионального значения
"Здание мечети", конец XIX в., адрес (местоположение):
Республика Татарстан, Арский муниципальный район, с. Чиканас,
ул. Советская, д. 36

Особый режим использования земель и требования к градостроительным регламентам в границах охранной зоны объекта культурного наследия регионального значения "Здание мечети", конец XIX в., адрес (местоположение): Республика Татарстан, Арский муниципальный район, с. Чиканас, ул. Советская, д. 36
Запрещается:
1. Строительство, за исключением применения специальных мер, направленных на сохранение и (или) восстановление (регенерацию) историко-градостроительной и (или) природной среды объекта культурного наследия (восстановление, воссоздание, восполнение частично или полностью утраченных элементов и (или) характеристик историко-градостроительной и (или) природной среды).
2. Использование строительных технологий, оказывающих негативное воздействие на объекты культурного наследия и историческую застройку.
3. Размещение взрыво- и пожароопасных объектов, угрожающих сохранности объектов культурного наследия.
4. Строительство инженерных сетей наземным и надземным способами.
Исключение составляют случаи, когда такое строительство направлено на минимизацию негативного воздействия на объект культурного наследия и его историко-градостроительную и (или) природную среду.
5. Размещение рекламы, вывесок, некапитальных строений, сооружений и объектов, а именно:
мемориальных досок, памятных знаков, информационных табличек площадью информационного поля более 0,6 кв. метра;
указателей расположения туристских ресурсов и социальных объектов с параметрами более 1,8 метра по высоте и 1,2 метра по ширине.
Исключение составляют случаи, если такое размещение необходимо для обеспечения современного использования объекта культурного наследия, в том числе на время проведения работ по сохранению объектов культурного наследия.
6. Размещение базовых станций сотовой связи, башенных и антенно-мачтовых конструкций, включая телевизионные и радиоантенны.
Этот запрет не применяется к базовым станциям сотовой связи, башенным и антенно-мачтовым конструкциям, включая телевизионные и радиоантенны, которые размещены до 1 марта 2025 г., и не ограничивает проведение работ по их ремонту и модернизации.
7. Проведение работ в области благоустройства, предусматривающих:
применение нетрадиционных материалов в покрытии проездов, проходов, кроме асфальтобетона, натуральных материалов (камень, гранит, гравийная смесь) или имитирующих их (тротуарная плитка) с организацией водоотведения;
установку малых архитектурных форм, произведений монументально-декоративного искусства, мемориальных знаков, отдельно стоящего оборудования освещения, не соответствующих характеру историко-градостроительной среды;
посадку деревьев и кустарников, препятствующих визуальному восприятию объекта культурного наследия;
установку ограждений, кроме прозрачных, формирующих территории общего пользования, с применением материалов, соответствующих характеру историко-градостроительной среды (допускается применение строительных ограждений на время производства земляных, хозяйственных, ремонтных и иных работ).
Исключение составляют случаи, когда работы не оказывают негативного воздействия на объект культурного наследия, или не нарушают характеристики его историко-градостроительной среды, или необходимы для обеспечения его функционирования или обеспечения жизнедеятельности населения.
8. Размещение отходов производства и потребления, устройство складов и захоронений ядохимикатов.
Зона регулирования застройки и хозяйственной деятельности объекта культурного наследия регионального значения "Здание мечети", конец XIX в., адрес (местоположение): Республика Татарстан, Арский муниципальный район, с. Чиканас, ул. Советская, д. 36
Раздел 1
Сведения об объекте | ||
N п/п | Характеристики объекта | Описание характеристик |
1 | Местоположение объекта | Республика Татарстан, Арский муниципальный район, с. Чиканас |
2 | Площадь объекта +/- величина погрешности определения площади (Р +/- Дельта Р) | 7718,0 кв. метра +/- 31,0 кв. метра |
3 | Иные характеристики объекта | - |
Раздел 2
Сведения о местоположении границ объекта | |||||
1. Система координат: МСК-16 | |||||
2. Сведения о характерных точках границ объекта | |||||
Обозначение характерных точек границ | Координаты, метров | Метод определения координат характерной точки | Средняя квадратическая погрешность положения характерной точки (Mt), метров | Описание обозначения точки на местности (при наличии) | |
X | Y | ||||
1 | 2 | 3 | 4 | 5 | 6 |
- | - | - | - | - | - |
3. Сведения о характерных точках части (частей) границы объекта | |||||
Обозначение характерных точек части границы | Координаты, метров | Метод определения координат характерной точки | Средняя квадратическая погрешность положения характерной точки (Mt), метров | Описание обозначения точки на местности (при наличии) | |
X | Y | ||||
1 | 2 | 3 | 4 | 5 | 6 |
Часть N 1 | |||||
1 | 522217,00 | 1347054,14 | Аналитический | 0,1 | - |
2 | 522218,35 | 1347076,07 | Аналитический | 0,1 | - |
3 | 522219,31 | 1347093,07 | Аналитический | 0,1 | - |
4 | 522221,12 | 1347122,90 | Аналитический | 0,1 | - |
5 | 522197,47 | 1347123,58 | Аналитический | 0,1 | - |
6 | 522196,60 | 1347123,93 | Аналитический | 0,1 | - |
7 | 522195,29 | 1347076,48 | Аналитический | 0,1 | - |
8 | 522177,73 | 1347075,95 | Аналитический | 0,1 | - |
9 | 522177,68 | 1347076,14 | Аналитический | 0,1 | - |
10 | 522168,43 | 1347076,07 | Аналитический | 0,1 | - |
11 | 522145,73 | 1347076,50 | Аналитический | 0,1 | - |
12 | 522143,42 | 1347076,37 | Аналитический | 0,1 | - |
13 | 522135,51 | 1347075,94 | Аналитический | 0,1 | - |
14 | 522135,55 | 1347075,71 | Аналитический | 0,1 | - |
15 | 522128,44 | 1347075,76 | Аналитический | 0,1 | - |
16 | 522131,03 | 1347051,53 | Аналитический | 0,1 | - |
17 | 522167,03 | 1347052,63 | Аналитический | 0,1 | - |
1 | 522217,00 | 1347054,14 | Аналитический | 0,1 | - |
Часть N 2 | |||||
18 | 522213,87 | 1347145,84 | Аналитический | 0,1 | - |
19 | 522214,11 | 1347148,75 | Аналитический | 0,1 | - |
20 | 522225,38 | 1347148,94 | Аналитический | 0,1 | - |
21 | 522225,32 | 1347152,45 | Аналитический | 0,1 | - |
22 | 522226,00 | 1347154,68 | Аналитический | 0,1 | - |
23 | 522224,82 | 1347203,86 | Аналитический | 0,1 | - |
24 | 522214,33 | 1347203,18 | Аналитический | 0,1 | - |
25 | 522213,16 | 1347203,12 | Аналитический | 0,1 | - |
26 | 522195,16 | 1347236,12 | Аналитический | 0,1 | - |
27 | 522169,33 | 1347219,27 | Аналитический | 0,1 | - |
28 | 522156,32 | 1347210,78 | Аналитический | 0,1 | - |
29 | 522162,45 | 1347187,12 | Аналитический | 0,1 | - |
30 | 522168,18 | 1347164,98 | Аналитический | 0,1 | - |
31 | 522173,26 | 1347146,40 | Аналитический | 0,1 | - |
32 | 522173,72 | 1347142,40 | Аналитический | 0,1 | - |
33 | 522188,55 | 1347143,50 | Аналитический | 0,1 | - |
34 | 522195,43 | 1347143,77 | Аналитический | 0,1 | - |
18 | 522213,87 | 1347145,84 | Аналитический | 0,1 | - |
Раздел 3
Сведения о местоположении измененных (уточненных) границ объекта | |||||||
1. Система координат: МСК-16 | |||||||
2. Сведения о характерных точках границ объекта | |||||||
Обозначение характерных точек границ | Существующие координаты, метров | Измененные (уточненные) координаты, метров | Метод определения координат характерной точки | Средняя квадратическая погрешность положения характерной точки (Mt), метров | Описание обозначения точки на местности (при наличии) | ||
X | Y | X | Y | ||||
1 | 2 | 3 | 4 | 5 | 6 | 7 | 8 |
- | - | - | - | - | - | - | - |
3. Сведения о характерных точках части (частей) границы объекта | |||||||
1 | 2 | 3 | 4 | 5 | 6 | 7 | 8 |
- | - | - | - | - | - | - | - |
Раздел 4
План границ зоны регулирования застройки и хозяйственной деятельности объекта
культурного наследия регионального значения "Здание мечети", конец
XIX в., адрес (местоположение): Республика Татарстан, Арский муниципальный
район, с. Чиканас, ул. Советская, д. 36

Режим использования земель и требования к градостроительным регламентам в границах зоны регулирования застройки и хозяйственной деятельности объекта культурного наследия регионального значения "Здание мечети", конец XIX в., адрес (местоположение): Республика Татарстан, Арский муниципальный район, с. Чиканас, ул. Советская, д. 36
Запрещается:
1. Использование строительных технологий, оказывающих негативное воздействие на объекты культурного наследия и историческую застройку.
2. Размещение взрыво- и пожароопасных объектов, угрожающих сохранности объектов культурного наследия.
3. Строительство, реконструкция объектов капитального строительства, предусматривающие:
высоту более 8 метров до карниза и более 10 метров до конька скатной кровли, парапета или верха выступающих строительных конструкций (за уровень земли принимается средняя отметка, которая высчитывается путем сравнения всех угловых отметок здания);
применение для наружной отделки фасадов сайдинга, металлических или пластиковых панелей, профилированного металлического листа, асбестоцементных листов, а также фрагментарной отделки.
4. Строительство инженерных сетей наземным и надземным способами, кроме временных сетей на период строительных и ремонтных работ.
Исключение составляют случаи, если такое строительство направлено на минимизацию негативного воздействия на объект культурного наследия и его историко-градостроительную и (или) природную среду или необходимо для обеспечения его функционирования или обеспечения жизнедеятельности населения.
5. Размещение рекламы, вывесок, некапитальных строений, сооружений, а именно:
рекламных конструкций с одной стороной информационного поля более 1,5 кв. метра и высотой более 2,0 метра;
информационных табличек площадью информационного поля более 0,6 кв. метра;
памятных знаков, указателей расположения туристских ресурсов и социальных объектов с параметрами более 1,8 метра по высоте и 1,2 метра по ширине;
некапитальных строений высотой более 4 метров, за исключением их размещения в виде отдельно стоящих объектов инженерной инфраструктуры, необходимых для функционирования объектов культурного наследия (трансформаторные подстанции);
установка глухих (непросматриваемых) ограждений по границам участков, за исключением временных ограждений для производства земляных, хозяйственных, ремонтных и иных работ.
6. Размещение базовых станций сотовой связи, башенных и антенно-мачтовых конструкций, включая телевизионные и радиоантенны.
Этот запрет не применяется к базовым станциям сотовой связи, башенным и антенно-мачтовым конструкциям, включая телевизионные и радиоантенны, которые размещены до 1 марта 2025 г., и не ограничивает проведение работ по их ремонту и модернизации в пределах их объемно-пространственных параметров.
Границы зон
охраны объекта культурного наследия регионального значения "Мечеть",
1911 г., расположенного по адресу: Республика Татарстан, Арский
муниципальный район, с. Новый Кырлай, ул. Татарстана, д. 20а,
особый режим использования земель и требования к градостроительным регламентам
в границах данных зон
(утв. постановлением
КМ РТ от 1 декабря 2025 г. N 1019)
Карта (схема) границ зон охраны объекта культурного наследия регионального значения "Мечеть", 1911 г.

Охранная зона объекта культурного наследия регионального значения "Мечеть", 1911 г., адрес (местоположение): Республика Татарстан, Арский муниципальный район, с. Новый Кырлай, ул. Татарстана, д. 20а
Раздел 1
Сведения об объекте | ||
N п/п | Характеристики объекта | Описание характеристик |
1 | Местоположение объекта | Республика Татарстан, Арский муниципальный район, с. Новый Кырлай |
2 | Площадь объекта +/- величина погрешности определения площади (Р +/- Дельта Р) | 2352,0 кв. метра +/- 17,0 кв. метра |
3 | Иные характеристики объекта | - |
Раздел 2
Сведения о местоположении границ объекта | |||||
1. Система координат: МСК-16 | |||||
2. Сведения о характерных точках границ объекта | |||||
Обозначение характерных точек границ | Координаты, метров | Метод определения координат характерной точки | Средняя квадратическая погрешность положения характерной точки (Mt), метров | Описание обозначения точки на местности (при наличии) | |
X | Y | ||||
1 | 2 | 3 | 4 | 5 | 6 |
- | - | - | - | - | - |
3. Сведения о характерных точках части (частей) границы объекта | |||||
Обозначение характерных точек части границы | Координаты, метров | Метод определения координат характерной точки | Средняя квадратическая погрешность положения характерной точки (Mt), метров | Описание обозначения точки на местности (при наличии) | |
X | Y | ||||
1 | 2 | 3 | 4 | 5 | 6 |
1 | 529743,73 | 1346952,43 | Аналитический | 0,1 | - |
2 | 529751,22 | 1346956,35 | Аналитический | 0,1 | - |
3 | 529760,09 | 1346957,35 | Аналитический | 0,1 | - |
4 | 529778,19 | 1346957,04 | Аналитический | 0,1 | - |
5 | 529786,82 | 1346953,86 | Аналитический | 0,1 | - |
6 | 529805,40 | 1346964,40 | Аналитический | 0,1 | - |
7 | 529824,20 | 1347004,94 | Аналитический | 0,1 | - |
8 | 529799,80 | 1347018,80 | Аналитический | 0,1 | - |
9 | 529791,55 | 1347023,49 | Аналитический | 0,1 | - |
10 | 529773,77 | 1347005,41 | Аналитический | 0,1 | - |
11 | 529756,86 | 1346985,59 | Аналитический | 0,1 | - |
12 | 529746,91 | 1346970,91 | Аналитический | 0,1 | - |
13 | 529743,12 | 1346957,16 | Аналитический | 0,1 | - |
14 | 529742,78 | 1346952,43 | Аналитический | 0,1 | - |
1 | 529743,73 | 1346952,43 | Аналитический | 0,1 | - |
| |||||
15 | 529783,80 | 1346966,27 | Аналитический | 0,1 | - |
16 | 529762,73 | 1346969,47 | Аналитический | 0,1 | - |
17 | 529762,27 | 1346972,43 | Аналитический | 0,1 | - |
18 | 529763,61 | 1346988,29 | Аналитический | 0,1 | - |
19 | 529775,97 | 1347002,36 | Аналитический | 0,1 | - |
20 | 529777,40 | 1347003,60 | Аналитический | 0,1 | - |
21 | 529778,04 | 1347004,02 | Аналитический | 0,1 | - |
22 | 529793,15 | 1347004,76 | Аналитический | 0,1 | - |
23 | 529794,58 | 1347004,82 | Аналитический | 0,1 | - |
24 | 529794,47 | 1347003,87 | Аналитический | 0,1 | - |
25 | 529791,80 | 1346983,87 | Аналитический | 0,1 | - |
15 | 529783,80 | 1346966,27 | Аналитический | 0,1 | - |
Раздел 3
Сведения о местоположении измененных (уточненных) границ объекта | |||||||
1. Система координат: МСК-16 | |||||||
2. Сведения о характерных точках границ объекта | |||||||
Обозначение характерных точек границ | Существующие координаты, метров | Измененные (уточненные) координаты, метров | Метод определения координат характерной точки | Средняя квадратическая погрешность положения характерной точки (Mt), метров | Описание обозначения точки на местности (при наличии) | ||
X | Y | X | Y | ||||
1 | 2 | 3 | 4 | 5 | 6 | 7 | 8 |
- | - | - | - | - | - | - | - |
3. Сведения о характерных точках части (частей) границы объекта | |||||||
1 | 2 | 3 | 4 | 5 | 6 | 7 | 8 |
- | - | - | - | - | - | - | - |
Раздел 4
План границ охранной зоны объекта культурного наследия регионального значения
"Мечеть", 1911 г., адрес (местоположение): Республика Татарстан,
Арский муниципальный район, с. Новый Кырлай, ул. Татарстана,
д. 20а

Особый режим использования земель и требования к градостроительным регламентам в границах охранной зоны объекта культурного наследия регионального значения "Мечеть", 1911 г., адрес (местоположение): Республика Татарстан, Арский муниципальный район, с. Новый Кырлай, ул. Татарстана, д. 20а
Запрещается:
1. Строительство, за исключением применения специальных мер, направленных на сохранение и (или) восстановление (регенерацию) историко-градостроительной и (или) природной среды объекта культурного наследия (восстановление, воссоздание, восполнение частично или полностью утраченных элементов и (или) характеристик историко-градостроительной и (или) природной среды).
2. Использование строительных технологий, оказывающих негативное воздействие на объекты культурного наследия и историческую застройку.
3. Размещение взрыво- и пожароопасных объектов, угрожающих сохранности объектов культурного наследия.
4. Строительство инженерных сетей наземным и надземным способами.
Исключение составляют случаи, когда такое строительство направлено на минимизацию негативного воздействия на объект культурного наследия и его историко-градостроительную и (или) природную среду.
5. Размещение рекламы, вывесок, некапитальных строений, сооружений и объектов, а именно:
мемориальных досок, памятных знаков, информационных табличек площадью информационного поля более 0,6 кв. метра;
указателей расположения туристских ресурсов и социальных объектов с параметрами более 1,8 метра по высоте и 1,2 метра по ширине.
Исключение составляют случаи, если такое размещение необходимо для обеспечения современного использования объекта культурного наследия, в том числе на время проведения работ по сохранению объектов культурного наследия.
6. Размещение базовых станций сотовой связи, башенных и антенно-мачтовых конструкций, включая телевизионные и радиоантенны.
Этот запрет не применяется к базовым станциям сотовой связи, башенным и антенно-мачтовым конструкциям, включая телевизионные и радиоантенны, которые размещены до 1 марта 2025 г., и не ограничивает проведение работ по их ремонту и модернизации.
7. Проведение работ в области благоустройства, предусматривающих:
применение нетрадиционных материалов в покрытии проездов, проходов, кроме асфальтобетона, натуральных материалов (камень, гранит, гравийная смесь) или имитирующих их (тротуарная плитка) с организацией водоотведения;
установку малых архитектурных форм, произведений монументально-декоративного искусства, мемориальных знаков, отдельно стоящего оборудования освещения, не соответствующих характеру историко-градостроительной среды;
посадку деревьев и кустарников, препятствующих визуальному восприятию объекта культурного наследия;
установку ограждений, кроме прозрачных, формирующих территории общего пользования, с применением материалов, соответствующих характеру историко-градостроительной среды (допускается применение строительных ограждений на время производства земляных, хозяйственных, ремонтных и иных работ).
Исключение составляют случаи, когда работы не оказывают негативного воздействия на объект культурного наследия, или не нарушают характеристики его историко-градостроительной среды, или необходимы для обеспечения его функционирования или обеспечения жизнедеятельности населения.
8. Размещение отходов производства и потребления, устройство складов и захоронений ядохимикатов.
Зона регулирования застройки и хозяйственной деятельности объекта культурного наследия регионального значения "Мечеть", 1911 г., адрес (местоположение): Республика Татарстан, Арский муниципальный район, с. Новый Кырлай, ул. Татарстана, д. 20а
Раздел 1
Сведения об объекте | ||
N п/п | Характеристики объекта | Описание характеристик |
1 | Местоположение объекта | Республика Татарстан, Арский муниципальный район, с. Новый Кырлай |
2 | Площадь объекта +/- величина погрешности определения площади (Р +/- Дельта Р) | 9543,0 кв. метра +/- 34,0 кв. метра |
3 | Иные характеристики объекта | - |
Раздел 2
Сведения о местоположении границ объекта | |||||
1. Система координат: МСК-16 | |||||
2. Сведения о характерных точках границ объекта | |||||
Обозначение характерных точек границ | Координаты, метров | Метод определения координат характерной точки | Средняя квадратическая погрешность положения характерной точки (Mt), метров | Описание обозначения точки на местности (при наличии) | |
X | Y | ||||
1 | 2 | 3 | 4 | 5 | 6 |
- | - | - | - | - | - |
3. Сведения о характерных точках части (частей) границы объекта | |||||
Обозначение характерных точек части границы | Координаты, метров | Метод определения координат характерной точки | Средняя квадратическая погрешность положения характерной точки (Mt), метров | Описание обозначения точки на местности (при наличии) | |
X | Y | ||||
1 | 2 | 3 | 4 | 5 | 6 |
Часть N 1 | |||||
1 | 529755,80 | 1346996,67 | Аналитический | 0,1 | - |
2 | 529769,42 | 1347012,62 | Аналитический | 0,1 | - |
3 | 529793,11 | 1347038,65 | Аналитический | 0,1 | - |
4 | 529808,47 | 1347062,93 | Аналитический | 0,1 | - |
5 | 529789,58 | 1347075,06 | Аналитический | 0,1 | - |
6 | 529770,46 | 1347084,01 | Аналитический | 0,1 | - |
7 | 529728,71 | 1347014,88 | Аналитический | 0,1 | - |
8 | 529729,13 | 1347013,20 | Аналитический | 0,1 | - |
9 | 529722,20 | 1346989,20 | Аналитический | 0,1 | - |
10 | 529708,62 | 1346968,33 | Аналитический | 0,1 | - |
11 | 529724,13 | 1346957,89 | Аналитический | 0,1 | - |
1 | 529755,80 | 1346996,67 | Аналитический | 0,1 | - |
Часть N 2 | |||||
12 | 529843,00 | 1346939,87 | Аналитический | 0,1 | - |
13 | 529882,47 | 1347024,67 | Аналитический | 0,1 | - |
14 | 529862,19 | 1347035,85 | Аналитический | 0,1 | - |
15 | 529843,00 | 1347045,47 | Аналитический | 0,1 | - |
16 | 529823,80 | 1347055,07 | Аналитический | 0,1 | - |
17 | 529799,80 | 1347018,80 | Аналитический | 0,1 | - |
18 | 529824,20 | 1347004,94 | Аналитический | 0,1 | - |
19 | 529805,40 | 1346964,40 | Аналитический | 0,1 | - |
20 | 529826,47 | 1346955,33 | Аналитический | 0,1 | - |
21 | 529835,53 | 1346944,40 | Аналитический | 0,1 | - |
12 | 529843,00 | 1346939,87 | Аналитический | 0,1 | - |
Раздел 3
Сведения о местоположении измененных (уточненных) границ объекта | |||||||
1. Система координат: МСК-16 | |||||||
2. Сведения о характерных точках границ объекта | |||||||
Обозначение характерных точек границ | Существующие координаты, метров | Измененные (уточненные) координаты, метров | Метод определения координат характерной точки | Средняя квадратическая погрешность положения характерной точки (Mt), метров | Описание обозначения точки на местности (при наличии) | ||
X | Y | X | Y | ||||
1 | 2 | 3 | 4 | 5 | 6 | 7 | 8 |
- | - | - | - | - | - | - | - |
3. Сведения о характерных точках части (частей) границы объекта | |||||||
1 | 2 | 3 | 4 | 5 | 6 | 7 | 8 |
- | - | - | - | - | - | - | - |
Раздел 4
План границ зоны регулирования застройки и хозяйственной деятельности объекта
культурного наследия регионального значения "Мечеть", 1911 г.,
адрес (местоположение): Республика Татарстан, Арский муниципальный район,
с. Новый Кырлай, ул. Татарстана, д. 20а

Режим использования земель и требования к градостроительным регламентам в границах зоны регулирования застройки и хозяйственной деятельности объекта культурного наследия регионального значения "Мечеть", 1911 г., адрес (местоположение): Республика Татарстан, Арский муниципальный район, с. Новый Кырлай, ул. Татарстана, д. 20а
Запрещается:
1. Использование строительных технологий, оказывающих негативное воздействие на объекты культурного наследия и историческую застройку.
2. Размещение взрыво- и пожароопасных объектов, угрожающих сохранности объектов культурного наследия.
3. Строительство, реконструкция объектов капитального строительства, предусматривающие:
высоту более 8 метров до карниза и более 10 метров до конька скатной кровли, парапета или верха выступающих строительных конструкций (за уровень земли принимается средняя отметка, которая высчитывается путем сравнения всех угловых отметок здания);
применение для наружной отделки фасадов сайдинга, металлических или пластиковых панелей, профилированного металлического листа, асбестоцементных листов, а также фрагментарной отделки.
4. Строительство инженерных сетей наземным и надземным способами, кроме временных сетей на период строительных и ремонтных работ.
Исключение составляют случаи, если такое строительство направлено на минимизацию негативного воздействия на объект культурного наследия и его историко-градостроительную и (или) природную среду или необходимо для обеспечения его функционирования или обеспечения жизнедеятельности населения.
5. Размещение рекламы, вывесок, некапитальных строений, сооружений, а именно:
рекламных конструкций с одной стороной информационного поля более 1,5 кв. метра и высотой более 2,0 метра;
информационных табличек площадью информационного поля более 0,6 кв. метра;
памятных знаков, указателей расположения туристских ресурсов и социальных объектов с параметрами более 1,8 метра по высоте и 1,2 метра по ширине;
некапитальных строений высотой более 4 метров, за исключением их размещения в виде отдельно стоящих объектов инженерной инфраструктуры, необходимых для функционирования объектов культурного наследия (трансформаторные подстанции);
установка глухих (непросматриваемых) ограждений по границам участков, за исключением временных ограждений для производства земляных, хозяйственных, ремонтных и иных работ.
6. Размещение базовых станций сотовой связи, башенных и антенно-мачтовых конструкций, включая телевизионные и радиоантенны.
Этот запрет не применяется к базовым станциям сотовой связи, башенным и антенно-мачтовым конструкциям, включая телевизионные и радиоантенны, которые размещены до 1 марта 2025 г., и не ограничивает проведение работ по их ремонту и модернизации в пределах их объемно-пространственных параметров.
Зона охраняемого природного ландшафта объекта культурного наследия регионального значения "Мечеть", 1911 г., адрес (местоположение): Республика Татарстан, Арский муниципальный район, с. Новый Кырлай, ул. Татарстана, д. 20а
Раздел 1
Сведения об объекте | ||
N п/п | Характеристики объекта | Описание характеристик |
1 | Местоположение объекта | Республика Татарстан, Арский муниципальный район, с. Новый Кырлай |
2 | Площадь объекта +/- величина погрешности определения площади (Р +/- Дельта Р) | 4010,0 кв. метра +/- 22,0 кв. метра |
3 | Иные характеристики объекта | - |
Раздел 2
Сведения о местоположении границ объекта | |||||
1. Система координат: МСК-16 | |||||
2. Сведения о характерных точках границ объекта | |||||
Обозначение характерных точек границ | Координаты, метров | Метод определения координат характерной точки | Средняя квадратическая погрешность положения характерной точки (Mt), метров | Описание обозначения точки на местности (при наличии) | |
X | Y | ||||
1 | 2 | 3 | 4 | 5 | 6 |
- | - | - | - | - | - |
3. Сведения о характерных точках части (частей) границы объекта | |||||
Обозначение характерных точек части границы | Координаты, метров | Метод определения координат характерной точки | Средняя квадратическая погрешность положения характерной точки (Mt), метров | Описание обозначения точки на местности (при наличии) | |
X | Y | ||||
1 | 2 | 3 | 4 | 5 | 6 |
1 | 529802,20 | 1346906,53 | Аналитический | 0,1 | - |
2 | 529843,00 | 1346939,87 | Аналитический | 0,1 | - |
3 | 529835,53 | 1346944,40 | Аналитический | 0,1 | - |
4 | 529826,47 | 1346955,33 | Аналитический | 0,1 | - |
5 | 529805,40 | 1346964,40 | Аналитический | 0,1 | - |
6 | 529786,82 | 1346953,86 | Аналитический | 0,1 | - |
7 | 529778,19 | 1346957,04 | Аналитический | 0,1 | - |
8 | 529760,09 | 1346957,35 | Аналитический | 0,1 | - |
9 | 529751,22 | 1346956,35 | Аналитический | 0,1 | - |
10 | 529743,73 | 1346952,43 | Аналитический | 0,1 | - |
11 | 529742,78 | 1346952,43 | Аналитический | 0,1 | - |
12 | 529739,97 | 1346912,50 | Аналитический | 0,1 | - |
13 | 529763,80 | 1346910,80 | Аналитический | 0,1 | - |
14 | 529764,47 | 1346913,47 | Аналитический | 0,1 | - |
15 | 529784,60 | 1346912,40 | Аналитический | 0,1 | - |
16 | 529796,60 | 1346911,07 | Аналитический | 0,1 | - |
1 | 529802,20 | 1346906,53 | Аналитический | 0,1 | - |
Раздел 3
Сведения о местоположении измененных (уточненных) границ объекта | |||||||
1. Система координат: МСК-16 | |||||||
2. Сведения о характерных точках границ объекта | |||||||
Обозначение характерных точек границ | Существующие координаты, метров | Измененные (уточненные) координаты, метров | Метод определения координат характерной точки | Средняя квадратическая погрешность положения характерной точки (Mt), метров | Описание обозначения точки на местности (при наличии) | ||
X | Y | X | Y | ||||
1 | 2 | 3 | 4 | 5 | 6 | 7 | 8 |
- | - | - | - | - | - | - | - |
3. Сведения о характерных точках части (частей) границы объекта | |||||||
1 | 2 | 3 | 4 | 5 | 6 | 7 | 8 |
- | - | - | - | - | - | - | - |
Раздел 4
План границ зоны охраняемого природного ландшафта объекта культурного наследия
регионального значения "Мечеть", 1911 г., адрес
(местоположение): Республика Татарстан, Арский муниципальный район,
с. Новый Кырлай, ул. Татарстана, д. 20а

Режим использования земель и требования к градостроительным регламентам в границах зоны охраняемого природного ландшафта объекта культурного наследия регионального значения "Мечеть", 1911 г., адрес (местоположение): Республика Татарстан, Арский муниципальный район, с. Новый Кырлай, ул. Татарстана, д. 20а
Запрещается:
1. Осуществление хозяйственной деятельности, нарушающей характер и облик исторического и природного окружения объекта культурного наследия, вызывающей загрязнение почв, воздушного и водного бассейнов, нарушение сложившегося характера гидрологических условий.
2. Уничтожение ценных зеленых насаждений.
3. Размещение взрыво- и пожароопасных объектов, угрожающих сохранности объектов культурного наследия, выявленных объектов культурного наследия.
4. Размещение отходов производства и потребления, устройство складов и захоронений ядохимикатов.
5. Размещение объектов, для которых требуется установление санитарно-защитной зоны и деятельность которых оказывает вредное воздействие на окружающую среду и охраняемый природный ландшафт.
6. Строительство, реконструкция объектов капитального строительства в параметрах, нарушающих характеристики историко-градостроительной среды или препятствующих ее сохранению и (или) восстановлению, за исключением случаев, если такие строительство, реконструкция необходимы для обеспечения функционирования объекта культурного наследия.
7. Строительство линейных объектов.
Исключение составляют случаи, если такое строительство направлено на минимизацию негативного воздействия на объект культурного наследия и его историко-градостроительную и (или) природную среду, или необходимо для обеспечения его функционирования или обеспечения жизнедеятельности населения, или необходимо для обеспечения сохранности, сохранения, содержания и эксплуатации объекта культурного наследия религиозного назначения и (или) объектов капитального строительства, образующих с ним монастырский, храмовый или иной культовый комплекс.
8. Размещение базовых станций сотовой связи, башенных и антенно-мачтовых конструкций, включая телевизионные и радиоантенны.
Этот запрет не применяется к базовым станциям сотовой связи, башенным и антенно-мачтовым конструкциям, включая телевизионные и радиоантенны, которые размещены до 1 марта 2025 г., и не ограничивает проведение работ по их ремонту и модернизации в пределах их объемно-пространственных параметров.
Границы зон
охраны объекта культурного наследия регионального значения "Усадьба
крестьянина Сагди, в которой в 1892-1895 гг. жил поэт Габдулла Тукай
(1886-1913)", 1892-1895 гг., расположенного по адресу: Республика
Татарстан, Арский муниципальный район, с. Новый Кырлай, ул. Тукая,
д. 30, особый режим использования земель и требования к градостроительным
регламентам в границах данных зон
(утв. постановлением
КМ РТ от 1 декабря 2025 г. N 1019)
Карта (схема) границ зон охраны объекта культурного наследия регионального значения "Усадьба крестьянина Сагди, в которой в 1892-1895 гг. жил поэт Габдулла Тукай (1886-1913)", 1892-1895 гг.

Охранная зона объекта культурного наследия регионального значения "Усадьба крестьянина Сагди, в которой в 1892-1895 гг. жил поэт Габдулла Тукай (1886-1913)", 1892-1895 гг., адрес (местоположение): Республика Татарстан, Арский муниципальный район, с. Новый Кырлай, ул. Тукая, д. 30
Раздел 1
Сведения об объекте | ||
N п/п | Характеристики объекта | Описание характеристик |
1 | Местоположение объекта | Республика Татарстан, Арский муниципальный район, с. Новый Кырлай |
2 | Площадь объекта +/- величина погрешности определения площади (Р +/- Дельта Р) | 2523,0 кв. метра +/- 17,0 кв. метра |
3 | Иные характеристики объекта | - |
Раздел 2
Сведения о местоположении границ объекта | |||||
1. Система координат: МСК-16 | |||||
2. Сведения о характерных точках границ объекта | |||||
Обозначение характерных точек границ | Координаты, метров | Метод определения координат характерной точки | Средняя квадратическая погрешность положения характерной точки (Mt), метров | Описание обозначения точки на местности (при наличии) | |
X | Y | ||||
1 | 2 | 3 | 4 | 5 | 6 |
- | - | - | - | - | - |
3. Сведения о характерных точках части (частей) границы объекта | |||||
Обозначение характерных точек части границы | Координаты, метров | Метод определения координат характерной точки | Средняя квадратическая погрешность положения характерной точки (Mt), метров | Описание обозначения точки на местности (при наличии) | |
X | Y | ||||
1 | 529668,23 | 1346850,31 | Аналитический | 0,1 | - |
2 | 529669,27 | 1346854,51 | Аналитический | 0,1 | - |
3 | 529672,24 | 1346866,55 | Аналитический | 0,1 | - |
4 | 529676,77 | 1346879,71 | Аналитический | 0,1 | - |
5 | 529686,86 | 1346915,30 | Аналитический | 0,1 | - |
6 | 529685,92 | 1346917,79 | Аналитический | 0,1 | - |
7 | 529666,07 | 1346926,31 | Аналитический | 0,1 | - |
8 | 529660,81 | 1346928,53 | Аналитический | 0,1 | - |
9 | 529646,93 | 1346933,20 | Аналитический | 0,1 | - |
10 | 529635,36 | 1346891,30 | Аналитический | 0,1 | - |
11 | 529636,43 | 1346890,98 | Аналитический | 0,1 | - |
12 | 529655,86 | 1346885,21 | Аналитический | 0,1 | - |
13 | 529655,39 | 1346883,44 | Аналитический | 0,1 | - |
14 | 529653,12 | 1346874,77 | Аналитический | 0,1 | - |
15 | 529648,50 | 1346860,15 | Аналитический | 0,1 | - |
16 | 529627,92 | 1346865,96 | Аналитический | 0,1 | - |
17 | 529626,92 | 1346862,41 | Аналитический | 0,1 | - |
18 | 529653,34 | 1346854,67 | Аналитический | 0,1 | - |
19 | 529656,71 | 1346853,69 | Аналитический | 0,1 | - |
1 | 529668,23 | 1346850,31 | Аналитический | 0,1 | - |
Раздел 3
Сведения о местоположении измененных (уточненных) границ объекта | |||||||
1. Система координат: МСК-16 | |||||||
2. Сведения о характерных точках границ объекта | |||||||
Обозначение характерных точек границ | Существующие координаты, метров | Измененные (уточненные) координаты, метров | Метод определения координат характерной точки | Средняя квадратическая погрешность положения характерной точки (Mt), метров | Описание обозначения точки на местности (при наличии) | ||
X | Y | X | Y | ||||
1 | 2 | 3 | 4 | 5 | 6 | 7 | 8 |
- | - | - | - | - | - | - | - |
3. Сведения о характерных точках части (частей) границы объекта | |||||||
1 | 2 | 3 | 4 | 5 | 6 | 7 | 8 |
- | - | - | - | - | - | - | - |
Раздел 4
План границ охранной зоны объекта культурного наследия регионального значения
"Усадьба крестьянина Сагди, в которой в 1892-1895 гг. жил поэт
Габдулла Тукай (1886-1913)", 1892-1895 гг., адрес (местоположение):
Республика Татарстан, Арский муниципальный район, с. Новый Кырлай,
ул. Тукая, д. 30

Особый режим использования земель и требования к градостроительным регламентам в границах охранной зоны объекта культурного наследия регионального значения "Усадьба крестьянина Сагди, в которой в 1892-1895 гг. жил поэт Габдулла Тукай (1886-1913)", 1892-1895 гг., адрес (местоположение): Республика Татарстан, Арский муниципальный район, с. Новый Кырлай, ул. Тукая, д. 30
Запрещается:
1. Строительство, за исключением применения специальных мер, направленных на сохранение и (или) восстановление (регенерацию) историко-градостроительной и (или) природной среды объекта культурного наследия (восстановление, воссоздание, восполнение частично или полностью утраченных элементов и (или) характеристик историко-градостроительной и (или) природной среды).
2. Использование строительных технологий, оказывающих негативное воздействие на объекты культурного наследия и историческую застройку.
3. Размещение взрыво- и пожароопасных объектов, угрожающих сохранности объектов культурного наследия.
4. Строительство инженерных сетей наземным и надземным способами.
Исключение составляют случаи, когда такое строительство направлено на минимизацию негативного воздействия на объект культурного наследия и его историко-градостроительную и (или) природную среду.
5. Размещение рекламы, вывесок, некапитальных строений, сооружений и объектов, а именно:
мемориальных досок, памятных знаков, информационных табличек площадью информационного поля более 0,6 кв. метра;
указателей расположения туристских ресурсов и социальных объектов с параметрами более 1,8 метра по высоте и 1,2 метра по ширине.
Исключение составляют случаи, если такое размещение необходимо для обеспечения современного использования объекта культурного наследия, в том числе на время проведения работ по сохранению объектов культурного наследия.
6. Размещение базовых станций сотовой связи, башенных и антенно-мачтовых конструкций, включая телевизионные и радиоантенны.
Этот запрет не применяется к базовым станциям сотовой связи, башенным и антенно-мачтовым конструкциям, включая телевизионные и радиоантенны, которые размещены до 1 марта 2025 г., и не ограничивает проведение работ по их ремонту и модернизации.
7. Проведение работ в области благоустройства, предусматривающих:
применение нетрадиционных материалов в покрытии проездов, проходов, кроме асфальтобетона, натуральных материалов (камень, гранит, гравийная смесь) или имитирующих их (тротуарная плитка) с организацией водоотведения;
установку малых архитектурных форм, произведений монументально-декоративного искусства, мемориальных знаков, отдельно стоящего оборудования освещения, не соответствующих характеру историко-градостроительной среды;
посадку деревьев и кустарников, препятствующих визуальному восприятию объекта культурного наследия;
установку ограждений, кроме прозрачных, формирующих территории общего пользования, с применением материалов, соответствующих характеру историко-градостроительной среды (допускается применение строительных ограждений на время производства земляных, хозяйственных, ремонтных и иных работ).
Исключение составляют случаи, когда работы не оказывают негативного воздействия на объект культурного наследия, или не нарушают характеристики его историко-градостроительной среды, или необходимы для обеспечения его функционирования или обеспечения жизнедеятельности населения.
8. Размещение отходов производства и потребления, устройство складов и захоронений ядохимикатов.
Зона регулирования застройки и хозяйственной деятельности объекта культурного наследия регионального значения "Усадьба крестьянина Сагди, в которой в 1892-1895 гг. жил поэт Габдулла Тукай (1886-1913)", 1892-1895 гг., адрес (местоположение): Республика Татарстан, Арский муниципальный район, с. Новый Кырлай, ул. Тукая, д. 30
Раздел 1
Сведения об объекте | ||
N п/п | Характеристики объекта | Описание характеристик |
1 | Местоположение объекта | Республика Татарстан, Арский муниципальный район, с. Новый Кырлай |
2 | Площадь объекта +/- величина погрешности определения площади (Р +/- Дельта Р) | 6662,0 кв. метра +/- 28,0 кв. метра |
3 | Иные характеристики объекта | - |
Раздел 2
Сведения о местоположении границ объекта | |||||
1. Система координат: МСК-16 | |||||
2. Сведения о характерных точках границ объекта | |||||
Обозначение характерных точек границ | Координаты, метров | Метод определения координат характерной точки | Средняя квадратическая погрешность положения характерной точки (Mt), метров | Описание обозначения точки на местности (при наличии) | |
X | Y | ||||
1 | 2 | 3 | 4 | 5 | 6 |
- | - | - | - | - | - |
3. Сведения о характерных точках части (частей) границы объекта | |||||
Обозначение характерных точек части границы | Координаты, метров | Метод определения координат характерной точки | Средняя квадратическая погрешность положения характерной точки (Mt), метров | Описание обозначения точки на местности (при наличии) | |
X | Y | ||||
Часть N 1 | |||||
1 | 529627,92 | 1346865,96 | Аналитический | 0,1 | - |
2 | 529635,36 | 1346891,30 | Аналитический | 0,1 | - |
3 | 529646,93 | 1346933,20 | Аналитический | 0,1 | - |
4 | 529645,92 | 1346933,54 | Аналитический | 0,1 | - |
5 | 529647,93 | 1346941,07 | Аналитический | 0,1 | - |
6 | 529625,37 | 1346950,04 | Аналитический | 0,1 | - |
7 | 529606,14 | 1346954,44 | Аналитический | 0,1 | - |
8 | 529594,02 | 1346919,93 | Аналитический | 0,1 | - |
9 | 529581,99 | 1346879,71 | Аналитический | 0,1 | - |
10 | 529607,24 | 1346872,77 | Аналитический | 0,1 | - |
1 | 529627,92 | 1346865,96 | Аналитический | 0,1 | - |
Часть N 2 | |||||
11 | 529669,27 | 1346854,51 | Аналитический | 0,1 | - |
12 | 529691,18 | 1346848,49 | Аналитический | 0,1 | - |
13 | 529717,83 | 1346841,99 | Аналитический | 0,1 | - |
14 | 529726,24 | 1346907,86 | Аналитический | 0,1 | - |
15 | 529708,51 | 1346913,58 | Аналитический | 0,1 | - |
16 | 529686,86 | 1346915,30 | Аналитический | 0,1 | - |
17 | 529676,77 | 1346879,71 | Аналитический | 0,1 | - |
18 | 529672,24 | 1346866,55 | Аналитический | 0,1 | - |
11 | 529669,27 | 1346854,51 | Аналитический | 0,1 | - |
Раздел 3
Сведения о местоположении измененных (уточненных) границ объекта | |||||||
1. Система координат: МСК-16 | |||||||
2. Сведения о характерных точках границ объекта | |||||||
Обозначение характерных точек границ | Существующие координаты, метров | Измененные (уточненные) координаты, метров | Метод определения координат характерной точки | Средняя квадратическая погрешность положения характерной точки (Mt), метров | Описание обозначения точки на местности (при наличии) | ||
X | Y | X | Y | ||||
1 | 2 | 3 | 4 | 5 | 6 | 7 | 8 |
- | - | - | - | - | - | - | - |
3. Сведения о характерных точках части (частей) границы объекта | |||||||
1 | 2 | 3 | 4 | 5 | 6 | 7 | 8 |
- | - | - | - | - | - | - | - |
Раздел 4
План границ зоны регулирования застройки и хозяйственной деятельности объекта
культурного наследия регионального значения "Усадьба крестьянина Сагди, в
которой в 1892-1895 гг. жил поэт Габдулла Тукай (1886-1913)",
1892-1895 гг., адрес (местоположение): Республика Татарстан, Арский
муниципальный район, с. Новый Кырлай, ул. Тукая, д. 30

Режим использования земель и требования к градостроительным регламентам в границах зоны регулирования застройки и хозяйственной деятельности объекта культурного наследия регионального значения "Усадьба крестьянина Сагди, в которой в 1892-1895 гг. жил поэт Габдулла Тукай (1886-1913)", 1892-1895 гг., адрес (местоположение): Республика Татарстан, Арский муниципальный район, с. Новый Кырлай, ул. Тукая, д. 30
Запрещается:
1. Использование строительных технологий, оказывающих негативное воздействие на объекты культурного наследия и историческую застройку.
2. Размещение взрыво- и пожароопасных объектов, угрожающих сохранности объектов культурного наследия.
3. Строительство, реконструкция объектов капитального строительства, предусматривающие:
высоту более 8 метров до карниза и более 10 метров до конька скатной кровли, парапета или верха выступающих строительных конструкций (за уровень земли принимается средняя отметка, которая высчитывается путем сравнения всех угловых отметок здания);
применение для наружной отделки фасадов сайдинга, металлических или пластиковых панелей, профилированного металлического листа, асбестоцементных листов, а также фрагментарной отделки.
4. Строительство инженерных сетей наземным и надземным способами, кроме временных сетей на период строительных и ремонтных работ.
Исключение составляют случаи, если такое строительство направлено на минимизацию негативного воздействия на объект культурного наследия и его историко-градостроительную и (или) природную среду или необходимо для обеспечения его функционирования или обеспечения жизнедеятельности населения.
5. Размещение рекламы, вывесок, некапитальных строений, сооружений, а именно:
рекламных конструкций с одной стороной информационного поля более 1,5 кв. метра и высотой более 2,0 метра;
информационных табличек площадью информационного поля более 0,6 кв. метра;
памятных знаков, указателей расположения туристских ресурсов и социальных объектов с параметрами более 1,8 метра по высоте и 1,2 метра по ширине;
некапитальных строений высотой более 4 метров, за исключением их размещения в виде отдельно стоящих объектов инженерной инфраструктуры, необходимых для функционирования объектов культурного наследия (трансформаторные подстанции);
установка глухих (непросматриваемых) ограждений по границам участков, за исключением временных ограждений для производства земляных, хозяйственных, ремонтных и иных работ.
6. Размещение базовых станций сотовой связи, башенных и антенно-мачтовых конструкций, включая телевизионные и радиоантенны.
Этот запрет не применяется к базовым станциям сотовой связи, башенным и антенно-мачтовым конструкциям, включая телевизионные и радиоантенны, которые размещены до 1 марта 2025 г., и не ограничивает проведение работ по их ремонту и модернизации в пределах их объемно-пространственных параметров.
